استعراض القائمة
شارك الإعلان

شقه

بيت لحم

شقه عظم للبيع

120000 دولار
تاريخ العرض: انتهى عرض

م.ثائر شختور

تواصل مع البائع

وصف العقار

  • البناء قيد مرحلة الإنشاء
  • البناء يتم تحت إشراف هندسي وعزل كامل كامل وفحص مخبري لكل عنصر من العناصر الإنشائية في كل مرحلة
  • موقع متميز، وإطلالة جميلة على النفق تبعد مسافة أقل من 4 دقائق للوصول
  • يوجد شارعان للوصول إلى المشروع السكني
  • شراء من المالك مباشرة بدون وسطاء
  • مع امكانيه تشطيب شقه حسب الأصول
  • إمكانية التقسيط لمن يشتري قبل انتهاء عمل
  • كافة إجرائات السلامة من الدفاع المدني
  • مواصفات البناء
  • أجود أنواع الحجر الطبيعي المقاوم لامتصاص المياه وبقوة كسر عالية
  • البناء يحتوي على شقتين فقط لكل طابق
  • موقف سيارات لكل شقة سكنية

بيانات العقار

  • حاله العقار: عظم
  • المدينة: بيت لحم
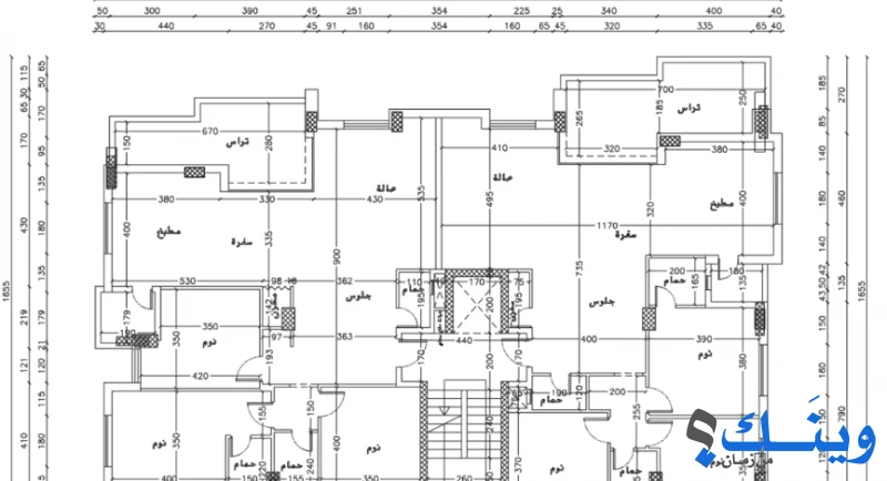
  • مساحه العقار: 170 متر
  • مساحه الارض: 950 متر
  • العنوان: بيت لحم - بيت جالا - شارع الـDCO
ماذا يوجد في العقار؟
  • عدد الغرف: 3
  • عدد الحمامات: 2
  • عدد المطابخ: 1
  • عدد البرندات: 2
  • الصالة: صالة واسعة
خصائص إضافية
يوجد مصعد الكتروني يوجد موقف سيارات خاص يوجد تدفئة مركزية
رقم الإعلان: 23122 الإبلاغ عن مشكلة