استعراض القائمة
شارك الإعلان

منزل منفصل

رام الله والبيرة

منزل منفصل غير مفروشه للبيع

تاريخ العرض: انتهى عرض

أ. إيهاب أبو ذهيبة

تواصل مع البائع

وصف العقار

  • يقع المنزل في أجمل مناطق قرية جفنا المُطلّة.
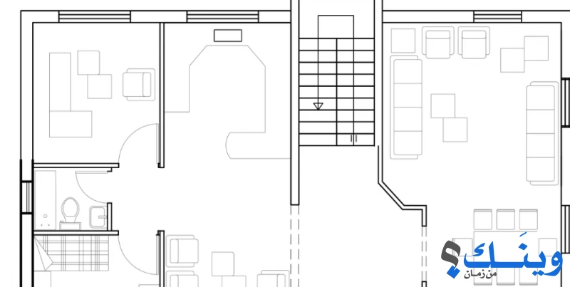
  • المنزل جديد نسبياً وغير مُهان مبنى على النظام الأمريكي (فيلا) بطابقين مساحة كل منهما 120 متر مربع تقريباً.
  • رخصة البناء تسمح بأربعة طوابق، أي أنه من الممكن بناء طابقين إضافيين.
  • يتكوّن الطابق الأرضي من صالون كبير مع حمامه، مطبخ مع غرفة معيشة مقابلة له، وغرفتي نوم مع حمامها، بالإضافة لبلكون على المدخل الرئيسي للمنزل.
  • يتكوّن الطابق الثاني من غرفة نوم رئيسية مع حمامها، وغرفتي نوم مع حمامها، وصالة كبيرة مع بلكون.
  • المنزل مقام على أرض مساحتها 325 متر مربع تقريباً، مسوّر مع مساحة جيدة على الجهات الأربع (تصلح للزراعة أو لجلسة خارجية)
  • مواصفات البناء:
  • 1. حجز بارز (طبزة) أبيض
  • 2. صبّة نظافة أسفل البناء (أي أن أسفل البلاط باطون مسلّح لمنع الحشرات والزواحف من الوصول إلى المنزل)
  • 3. مطبخ كامل وجاهز للاستعمال مباشرةً
  • تم إنشاء المنزل للاستخدام الشخصي، أي أنه تم استثمار أفضل خامات البناء والتجهيزات فيه، ولم يتم إنشاءه لأغراض تجارية.

بيانات العقار

  • حاله العقار: غير مفروشه
  • المدينة: رام الله والبيرة
  • مساحه العقار: 250 متر مربع
  • مساحه الارض: 325 متر مربع
  • العنوان: رام الله والبيرة - جفنا - مقابل إسكانات شكوكاني وأكاديمية عرين ريناوي للتصوير
ماذا يوجد في العقار؟
  • عدد الغرف: 5
  • عدد الحمامات: 4
  • عدد المطابخ: 1
  • عدد البرندات: 2
  • الصالة: صالة كبيرة
خصائص إضافية
يوجد موقف سيارات خاص
رقم الإعلان: 13285 الإبلاغ عن مشكلة