استعراض القائمة
شارك الإعلان

فيلا

أريحا

فيلا عظم للبيع

تاريخ العرض: انتهى عرض

المهندس محمد خشان

تواصل مع البائع

وصف العقار

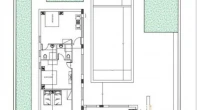
  • فيلا عظم في اريحا في منطقة النويعمة قرب تايجر لاند
  • للبيع من المالك مباشرة بدون وساطة

بيانات العقار

  • حاله العقار: عظم
  • المدينة: أريحا
  • مساحه العقار: 200 متر مربع
  • مساحه الارض: 700 متر مربع
  • العنوان: أريحا - النويعمة - قرب التايجر لاند
ماذا يوجد في العقار؟
  • عدد الغرف: 4
  • عدد الحمامات: 3
  • عدد المطابخ: 1
خصائص إضافية
يوجد موقف سيارات خاص
رقم الإعلان: 11430 الإبلاغ عن مشكلة

إعلانات مشابهة في أريحا

فيلا عظم للبيع

أريحا

790000 شيكل
فيلا مفروشة للبيع

أريحا